Keymer Close, Biggin Hill, Westerham, TN16

£440,000 Guide Price

Property Features

  • Refurbished Home
  • Three Bedrooms
  • Bi-folding Doors
  • Water Softener
  • Quiet Road
  • Garage En Bloc
  • Excellent Condition
  • Good Schools Nearby

Property Summary

Guide Price £440,000- £460,000


Three double bedroom semi-detached family home renovated to a high standard and situated on a quiet no through road.

Full Details

Guide Price £440,000- £460,000

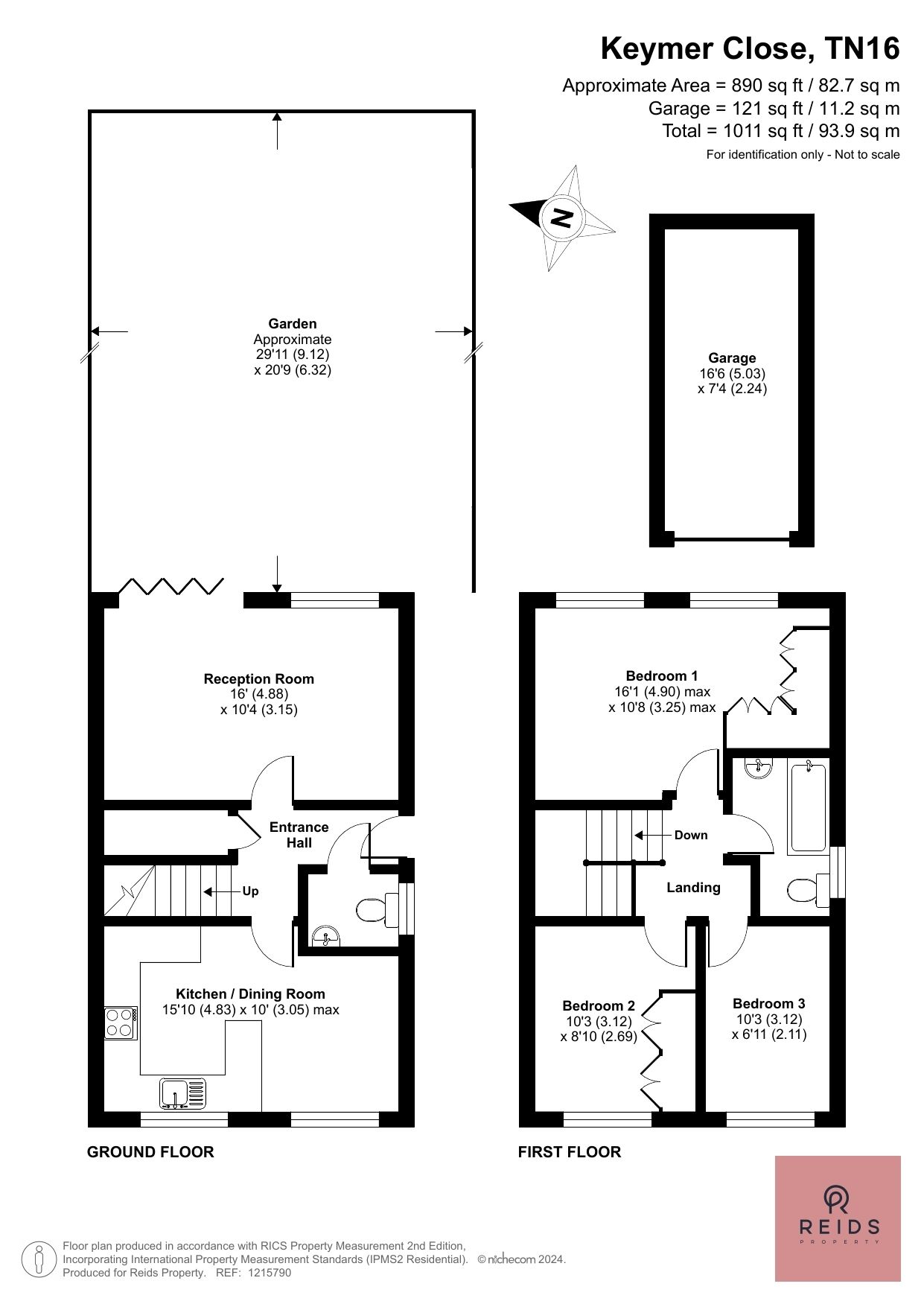
This refurbished three double bedroom family home with garage en bloc is located on a quiet close and has been renovated and remodelled by the current owners. Now boasting high quality Amtico flooring, aluminium bi-fold doors, new kitchen with quartz work surfaces, water softener, new bathroom, fitted wardrobes, and redecoration throughout. 

A real feature of this property is the fully landscaped rear garden, now suitable for use all year round, comprising a composite decking terrace and secluded section below with artificial grass and new fencing to each side. 

A garage can be found en bloc and provides some useful storage space or secure off road parking for one car.

The property is located in a quiet close within walking distance of the High Street with its selection of shops including Waitrose, leisure centre and swimming pool. 

Some highly regarded schools are nearby including Charles Darwin secondary school, a selection of grammar schools in Orpington, Sevenoaks and Tonbridge and Biggin Hill Primary School

EPC Rating: C